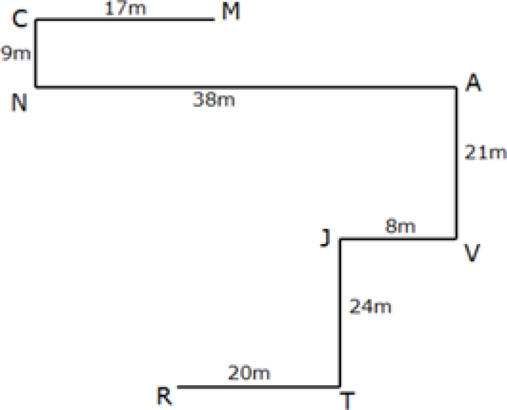
Study the following information carefully and answer the questions given below. Eight players are standing in the stadium at some distance. Player N is 38m to the west of player A.Player T is 20m to the east of player R. Player J is 24m to the north of player T. Player N is 9m to the south of player C. Player V is 8m to the east of player J. Player C is 17m to the west of player M. Player A is 21m to the north of player V. What is the shortest distance between the players R and A?
A.73m
B.63m
C.53m
D.43m
Sol:





